Mieszkanie w bliźniaku
Koszalin Pokaż na mapie ›
Odświeżone: Poniedziałek, 17 Listopad, 2025 10:43
360 000 zł
8036 zł/m2
Szczegóły ogłoszenia
- Kategoria: Mieszkania / Sprzedaż
- Powierzchnia:44,80 m2
- Liczba pokoi:2 pokoje
- Zabudowa:Dom
- Tech. budowy:Cegła
- Piętro :Parter
- Liczba pięter:Parterowy
- Rynek:Wtórny
- Stan:Do zamieszkania
- Sprzedaż:Pośrednik
- Inf. dodatkowe:Ogródek, Pom. użytkowe, Piwnica
- Cena: 360 000 zł / 8036 zł/m2
- Ulica: Obotrytów
Opis oferty
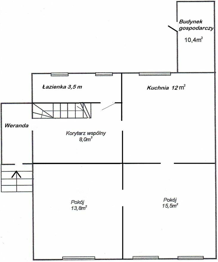
Do sprzedaży parter domu w zabudowie bliźniaczej z działką ogrodowo - warzywną.Mieszkanie składa się z dwóch pokoi o pow.15,5m2 i 13,8m2 , kuchni o pow. 12m2 oraz łazienki o pow. 3,5m2 .
Mieszkanie jest po remoncie. Nowe podłogi panele, okna pcv, W kuchni kuchenka , zlew, piec gazowy.
Ogrzewanie i ciepła woda z pieca gazowego.
Do mieszkania należą 2 piwnice o łącznej pow. 28,9m2 oraz przyległy budynek gospodarczy o pow. 10,4m2 ze stryszkiem, który pełni funkcję pokoju letniego. Wejście do budynku gospodarczego od ogrodu.
Wspólne wejście do lokali mieszkalnych przez werandę.
Parkowanie pojazdów samochodowych na terenie ogrodzonej, zamykanej bramą posesji.
Udział w nieruchomości gruntowej i budynku 569/1000.
Wraz z mieszkaniem sprzedawana jest niezależna własnościowa działka ogrodowo - warzywna o pow. 247m2 z licznymi drzewami owocowymi i krzewami. Na terenie ogrodu wydzielono miejsce do wypoczynku i rekreacji w słoneczne dni.
Uregulowany stan prawny.
Każdy z lokali mieszkalnych na parterze oraz na piętrze posiadają swoje KW oraz niezależne działki ogrodowo- warzywne z KW.
Jest opracowane świadectwo charakterystyki energetycznej.
Oglądanie w obecności Pośrednika . Licencja 880.
Zapraszamy
Sprawdź zainteresowanie tym ogłoszeniem
Wyświetlenia
Data dodania
Ostatnio widziany
Obserwujących
Wysłane zapytania
Odsłony telefonu
Powiadom o podobnych ogłoszeniach
Lokalizacja: Koszalin
Kategoria: Nieruchomości » Mieszkania » Sprzedaż
Cena: od 306000 zł do 414000 zł Powierzchnia : od 38 m2 do 52 m2
Chcę otrzymywać powiadomienia o nowych ofertach

Kontrakt Nieuchomości
Konto firmowe
Na Lento.pl od 29 cze 2018
Strona użytkownika
- Wypromuj ogłoszenie
- Zgłoś naruszenie
- Drukuj ulotkę
- Edytuj/usuń ogłoszenie
- Udostępnij ogłoszenie
- Dodaj na Facebook















